Narysować projekt salonu fryzjerskiego – rysunek
Projekt salonu fryzjerskiego zaczyna się od trzech kluczowych wątków: wymiarowanie i układ stref, rozmieszczenie stanowisk z ergonomią oraz optymalne oświetlenie i techniczne rysunki. Te elementy decydują o tym, czy szkic można szybko przekuć w rysunek wykonawczy i użyć komercyjnie. Poniżej znajdziesz krok po kroku wskazówki, tabele z orientacyjnymi kosztami oraz wskazówki do warstw i eksportu plików.

- Wymiarowanie i układ stref w salonie fryzjerskim
- Lokalizacja stanowisk fryzjerskich na planie
- Przewodniki dotyczące oświetlenia w salonie fryzjerskim
- Instrukcje rysunkowe wyposażenia: meble i sprzęt
- Kolorystyka i materiały w projekcie salonu fryzjerskiego
- Rysunek instalacji sanitarnych i wentylacji
- Prezentacja koncepcji dla klienta sketche i warstwy
- Pytania i odpowiedzi: narysować projekt salonu fryzjerskiego rysunek
- Zbierz wymiary lokalu i piony instalacyjne.
- Zaplanuj strefy: recepcja, stanowiska, myjnie, magazyn.
- Narysuj rzut w skali 1:50; detale mebli w 1:20.
- Dodaj warstwy: meble, instalacje, oświetlenie, wymiary.
- Przygotuj wersje PNG/PDF/DWG z oznaczonymi licencjami do użytku komercyjnego.
Wymiarowanie i układ stref w salonie fryzjerskim
Projekt zaczyna się od jasnego podziału na strefy: recepcja, poczekalnia, stanowiska, myjnie i zaplecze techniczne. Na każde stanowisko fryzjerskie rekomenduje się 6–8 m² powierzchni użytkowej, co pozwala uwzględnić lustro, fotel i wózek narzędziowy. Myjnia powinna mieć około 4–6 m², a recepcja 4–6 m²; szerokość korytarzy roboczych to minimum 100–120 cm dla wygody i bezpieczeństwa. Dla małego salonu 30–40 m² rozplanuj 3 stanowiska i jedną myjnię; salon 60–80 m² pomieści 4–6 stanowisk z magazynem i biurem.
Przemyśl logikę przepływu klienta: wejście → recepcja → poczekalnia → stanowisko → myjnia → kasa. Lustra montuj tak, by dolna krawędź zaczynała się około 90–100 cm od podłogi, a górna nie przekraczała 180–200 cm, zależnie od wysokości sufitu. Uwzględnij minimalne obszary manewrowe dla obrotu fotela i mobilnych wózków. Dokumentuj wymiary i punkty montażowe bezpośrednio na rzucie — to skraca czas prac instalacyjnych.
Dostępność dla osób z ograniczoną mobilnością wymaga drzwi min. 90 cm i pola manewru ok. 150 cm. Zaznacz przyłącza wodne i kanalizacyjne przy myjniach; odpływy sugerowane to 50–75 mm. Plan oznacz gniazda elektryczne co 1,5–2 m przy linii stanowisk — każde stanowisko potrzebuje 2–3 gniazd 230 V. To minimalizuje późniejsze przeróbki i koszty.
Lokalizacja stanowisk fryzjerskich na planie
Wybierz układ stanowisk: przy ścianie, naprzeciwko siebie lub w wyspie środkowej. Standardowa szerokość robocza na stanowisko to 90–120 cm; zostaw przynajmniej 100–120 cm korytarza roboczego. Na ścianie o długości 4,5 m zmieścisz trzy stanowiska o szerokości 1,2 m każde, ale komfort daje większy odstęp. Grupowanie myjni przy pionach instalacyjnych redukuje koszty rur i prac o ~20–30%.
Przykład dla 45 m²: zaplanuj 3 stanowiska (po 6–8 m²), myjnię 4–5 m², recepcję 5 m² i poczekalnię 3–4 m². Upewnij się, że stanowiska nie blokują dróg ewakuacyjnych i że przy myjniach są przyłącza i odpływy. Jeśli chcesz 2 myjni, dodaj 4–6 m² i przemyśl przesunięcie magazynu pod antresolę, jeśli wysokość pomieszczenia pozwala.
Ustaw stanowiska z myślą o ergonomii: lustra centralnie nad blatem, gniazda 30–45 cm nad podłogą i miejsce na wózek po prawej lub lewej stronie, zależnie od preferencji stylisty. Odległość między lustrami sąsiadujących stanowisk powinna wynosić 90–110 cm minimalnie; większa separacja daje prywatność i lepszą akustykę. Pomocne są niskie ścianki lub rośliny jako wizualne przegrody.
Przewodniki dotyczące oświetlenia w salonie fryzjerskim
Oświetlenie decyduje o jakości koloru i precyzji cięcia, więc traktuj je priorytetowo. Zalecane natężenie przy stanowisku to 500–1000 lx, w poczekalni 200–300 lx, a ogólne oświetlenie robocze 300–500 lx. Temperatura barwowa 3500–4500 K z indeksem oddawania barw CRI >90 daje neutralne warunki do koloryzacji. Kombinacja światła górnego i punktowego redukuje cienie i pozwala pracować precyzyjnie.
Przyjmij 3000–5000 lm łącznej mocy świetlnej na stanowisko rozłożone między sufit, lampę nad lustrem i lampę zadaniową na wysięgniku. Źródła LED 30–50 W dostarczą taką wydajność przy niskim zużyciu energii; pendanty nad stanowiskami kosztują orientacyjnie 150–700 zł, lampy zadaniowe 150–400 zł. Dyfuzory i lampy o szerokim kącie eliminują ostre cienie i poprawiają komfort obsługi klienta.
Sterowanie oświetleniem w strefach jest kluczowe: wydziel obwody dla światła ogólnego i zadaniowego oraz daj możliwość ściemniania. Naturalne światło jest zaletą, ale trzeba neutralizować jego wpływ przy stanowiskach przez rolety, by unikać zmiennej temperatury barwowej. Dla koloryzacji przewidź stałe źródło o stałej barwie, co minimalizuje błędy przy doborze pigmentu.
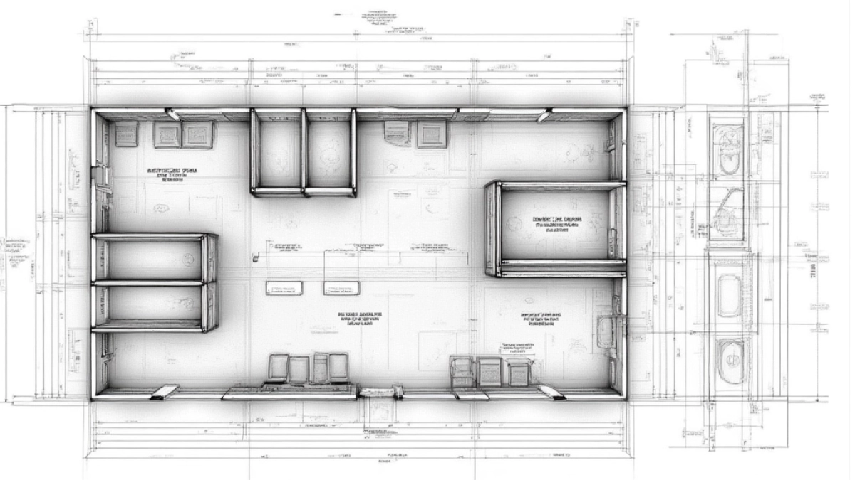
Instrukcje rysunkowe wyposażenia: meble i sprzęt
Rysunki wyposażenia twórz w skali 1:50 dla rzutu i 1:20 dla detali meblowych, aby klient widział proporcje i montaż. Na rysunku umieść obrys mebla, ilość, wymiary zewnętrzne oraz strefy ruchu; każdemu elementowi przypisz numer i legendę. Używaj warstw: meble, instalacje, oświetlenie, tekstury i opisy; warstwy ułatwiają eksport plików do DWG, PDF i PNG z możliwością komercyjnego wykorzystania. Zastosuj czytelne kreskowania i grubości linii dla elementów konstrukcyjnych.
Oto orientacyjna lista wyposażenia z wymiarami i kosztami, przydatna do szkicu kosztorysowego przed prezentacją klientowi. Ceny są przybliżone i zależą od jakości; korzystaj z tej tabeli do szacunkowego budżetu i zestawienia wariantów podstawowych i premium. Dla projektu przygotuj fotorealistyczne zdjęcia referencyjne i szkice techniczne z numeracją elementów opisanymi w tabeli.
| Element | Ilość | Wymiary (cm) | Orientacyjna cena (PLN) |
|---|---|---|---|
| Stanowisko z lustrem | 1 | 120×60×180 | 1 200–3 500 |
| Fotel fryzjerski | 1 | 60×60×100 | 1 200–3 500 |
| Myjnia z unit | 1 | 150×90×100 | 2 500–9 000 |
| Suszarka hełmowa | 1 | Ø70×120 | 800–1 500 |
| Recepcja (biurko) | 1 | 120×60×110 | 1 000–5 000 |
Rysunki do wykonawstwa zawierają tolerancje montażowe ±2–5 mm dla mebli modułowych i wyraźne oznaczenia otworów montażowych. Z naszego doświadczenia dobrze oznaczone warstwy i legenda oszczędzają 20–40% czasu wykonawcy przy montażu. Eksportuj pliki w PDF i DWG, przygotuj także PNG z przezroczystą warstwą układu, aby klient mógł używać szkicu komercyjnie bez problemów licencyjnych.
Kolorystyka i materiały w projekcie salonu fryzjerskiego
Kolorystyka powinna wspierać obiektywne postrzeganie barwy włosa: neutralne tony na ścianach i jasne oświetlenie przy stanowiskach. Podłogi wybieraj trwałe i łatwe w utrzymaniu: winyl 50–150 zł/m², płytki gresowe 60–200 zł/m², posadzki epoksydowe 150–300 zł/m². Akcenty kolorystyczne w postaci mebli, tapicerki czy detali miedzianych zmieniają charakter salonu bez wpływu na ocenę koloru włosów. Unikaj intensywnych luster w kolorowych ramach, które mogą zaburzać percepcję.
Blaty przy stanowiskach wybieraj z compact laminatu lub konglomeratu; szerokość robocza 60–80 cm, wysokość blatu od 90 cm. Myjnie i strefy mokre wymagają płytek lub materiału odpornego na wodę i środki chemiczne oraz antypoślizgowej powłoki. Farby o niskiej emisji LZO i matowe wykończenia ograniczają odblaski; koszt dobrej farby 40–120 zł/litr. Przy wyborze materiałów uwzględnij łatwość serwisu i wymiany elementów.
Przygotuj próbnik materiałów i tablicę referencyjną z próbkami podłóg, blatów, tkanin i malowania; fotografuj je w naturalnym świetle. Ustal wytrzymałość tkanin na ścieranie i łatwość czyszczenia—tapicerka klasy 30–50 tys. cykli ocierań jest standardem komercyjnym. Materiały łatwe w serwisie skracają czas przestoju i obniżają koszty eksploatacji salonu; warto dodać wskaźnik trwałości do specyfikacji i instrukcję czyszczenia.
Rysunek instalacji sanitarnych i wentylacji
Rysunek instalacji wodno‑kanalizacyjnej musi pokazywać punkty przyłączeń myjni, zlewozmywaków i urządzeń sanitarnych wraz z średnicami przewodów. Dla myjni użyj odpływu DN 50–75 mm i podejścia ciepłej i zimnej wody z zaworami odcinającymi przy punkcie. Zaznacz też miejsca wodomierzy, podłączeń do bojlera i dostęp serwisowy; to istotne przy odbiorach technicznych.
Wentylacja powinna odprowadzać opary chemiczne i zapewniać świeże powietrze: sugerowana wydajność to 50–100 m³/h na stanowisko w zależności od rodzaju zabiegów. Zainstaluj wyciągi lokalne nad strefami koloryzacji i suszenia, a nawiew umieść z dala od bezpośredniej pracy, by nie tworzyć przeciągów. W projekcie narysuj kanały, kratki i miejsca montażu wentylatorów oraz odległości od źródeł ciepła.
Na rzucie wskaż spadki rur kanalizacyjnych (min. 1–2% dla ścieków) i lokalizację syfonów, aby uniknąć cofania się wody. Oznacz gniazda i obwody elektryczne związane z urządzeniami wentylacyjnymi oraz ewentualną rekuperację, jeśli planujesz odzysk ciepła. Koordynuj rysunki z instalatorami przed finalizacją, aby uniknąć kolizji z zabudową meblową i skrócić czas realizacji.
Prezentacja koncepcji dla klienta sketche i warstwy
Przygotuj trzy poziomy materiałów do prezentacji: szkic roboczy (1:100), rzut techniczny (1:50) i wizualizacje 3D dla nastroju. Szkice ręczne i szybkie sketche pomagają sprzedać pomysł, rzut techniczny załatwia logistykę i pozwala na wycenę. Dołącz planszę materiałową i kosztorys orientacyjny, żeby klient mógł szybko porównać warianty i podjąć decyzję.
Wysyłaj pliki wielowarstwowe: warstwa mebli, warstwa instalacji, warstwa oświetlenia, warstwa wymiarowania i makiety materiałów. Formaty: PDF z warstwami, DWG dla wykonawcy i PNG do szybkich podglądów; każda warstwa opisana, z legendą i listą elementów. Podkreśl licencję grafik i bloków CAD — zasoby muszą mieć pozwolenie na użytek komercyjny, inaczej klient nie będzie mógł ich wykorzystać poza prezentacją.
Opowiadaj historię miejsca: dlaczego ustawiono stanowiska tak, jak są, komu służy recepcja i jak klient poczuje przestrzeń od wejścia. Krótki dialog w prezentacji bywa skuteczny: Klient: chcę przytulnie — Projektant: damy ciepłe drewno i neutralne tło, żeby kolor wyszedł naturalnie. Daj klientowi możliwość wyboru warstwy kolorystycznej i wersji meblowej, udostępniając PNG warstwy oraz PDF z opisami i kosztami.
Pytania i odpowiedzi: narysować projekt salonu fryzjerskiego rysunek
-
Jakie elementy powinien zawierać rysunek projektu salonu fryzjerskiego?
Odpowiedź: Narysuj układ strefy oczekiwania, stanowisk fryzjerskich (głowne i pomocnicze), strefę mycia, magazyn/zaopatrzenie, toaletę dla klientów, drogi komunikacyjne, a także odpowiednie oświetlenie, meble (ławki, lustra, krzesła) i ewentualne miejsce na recepcję. Zaznacz wymiary, odległości między strefami oraz miejsca na kable i instalacje.
-
Jak prawidłowo skalować rysunek na kartce, aby był czytelny dla klienta?
Odpowiedź: Użyj prostych skali (np. 1:50 lub 1:100), narysuj kontury ścian, kolory/strefy, a następnie dodaj legendę z użytymi symbolami. Zachowaj czytelne linie, upewnij się, że wszystkie elementy mieszczą się w ramce projektu, a wymiary są podane wyraźnie przy krawędziach planu.
-
Jak uwzględnić ergonomię pracy fryzjera w projekcie?
Odpowiedź: Zaplanuj odpowiednie odległości między stanowiskami (co najmniej 1,0–1,2 m pracy z klientem), wygodne ustawienie luster, wygodne miejsce na narzędzia, wygodny dostęp do zlewów i wózków narzędziowych, a także zapewnij łatwy dostęp do przechowywania środków ochrony i odzieży ochronnej. Uwzględnij także odpowiednią wysokość blatów i krzeseł oraz dobrą17 systemy wentylacji.
-
Czy mogę korzystać z darmowych szablonów lub szkiców do prezentacji klientowi?
Odpowiedź: Tak, możesz korzystać z darmowych zasobów i szkiców do opracowania wstępnych koncepcji, pod warunkiem że masz prawo do ich komercyjnego wykorzystania. Zawsze sprawdzaj licencję i dostosuj materiał do własnego projektu oraz klienta, a w razie potrzeby przygotuj własną adaptację w oparciu o te źródła.